在线股票配资-杠杆做多和做空数量怎么不一样-【东方资本】,中保金公司怎么样知乎,每日股票老师推荐,股票卖出买进规律

24小時咨詢熱線

400-0848-222

您所在的位置:
首頁 > 案例展示 > 設計案例

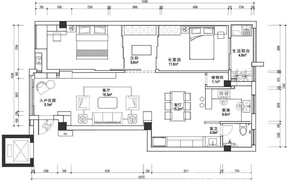
融創公園大觀125㎡極簡詫寂二居室 裝修案例效果圖

瀏覽人數: 5884次
更新時間:2023-02-10
設計主題:
極簡詫寂
案例戶型:
二居室
房屋面積:
125m2
所屬地區:
湖北武漢
樓盤名稱:
融創公園大觀
 設計師:
鴻揚設計

融創公園大觀125㎡極簡詫寂二居室 裝修案例效果圖-1 融創公園大觀125㎡極簡詫寂二居室 裝修案例效果圖-7 融創公園大觀125㎡極簡詫寂二居室 裝修案例效果圖-8 融創公園大觀125㎡極簡詫寂二居室 裝修案例效果圖-9 融創公園大觀125㎡極簡詫寂二居室 裝修案例效果圖-2 融創公園大觀125㎡極簡詫寂二居室 裝修案例效果圖-3 融創公園大觀125㎡極簡詫寂二居室 裝修案例效果圖-4 融創公園大觀125㎡極簡詫寂二居室 裝修案例效果圖-5 融創公園大觀125㎡極簡詫寂二居室 裝修案例效果圖-6 融創公園大觀125㎡極簡詫寂二居室 裝修案例效果圖-10 融創公園大觀125㎡極簡詫寂二居室 裝修案例效果圖-11 融創公園大觀125㎡極簡詫寂二居室 裝修案例效果圖-12 融創公園大觀125㎡極簡詫寂二居室 裝修案例效果圖-13 融創公園大觀125㎡極簡詫寂二居室 裝修案例效果圖-14 融創公園大觀125㎡極簡詫寂二居室 裝修案例效果圖-15 融創公園大觀125㎡極簡詫寂二居室 裝修案例效果圖-16 融創公園大觀125㎡極簡詫寂二居室 裝修案例效果圖-17

網友評價
0

您的信息我們將嚴格保密請放心提交

提交后將有工作人員聯系您,確認時間

第一步

請選擇您喜歡的裝修風格

  • 法式

  • 原木風

  • 雅致現代

  • 新中式

  • 復古

  • 其他

1/3
第二步

選擇房屋面積區間和戶型結構

  • 80-100㎡
  • 101-140㎡
  • 141-200㎡
  • 201-300㎡
  • 300㎡以上

您的戶型

  • 兩居室
  • 三居室
  • 四居室
  • 五居室
  • 六居室
2/3 返回
0%
稍等片刻,您的報價正在生成中...

您的報價已生成完畢

發送驗證碼
3/3